PŘIPRAVOVANÝ DEVELOPERSKÝ PROJEKT, VILA 4+KK CHRUDIM CENTRUM
Cena: na dotaz
Výstavba domu na klíč – moderní vily 4+kk se západní/ jižní terasou. Začněte stavět hned.
Chcete bydlet v novém, ale děsí vás roky vyřizování povolení? Mám pro vás řešení. Nabízím k prodeji připravený projekt výstavby rodinného domu (Dům A/B) v centru Chrudimi. Stavební povolení máme, stačí začít stavět.
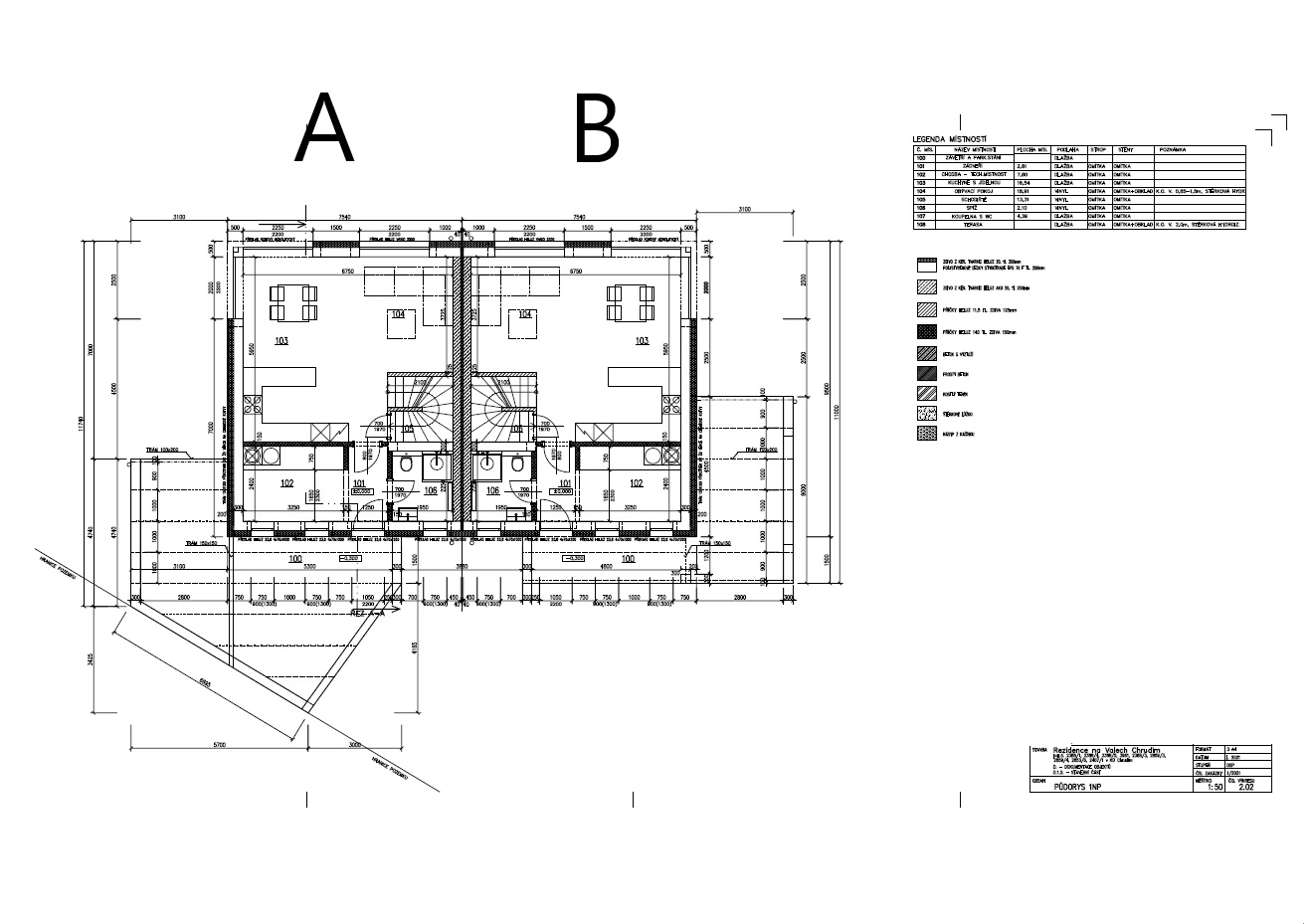
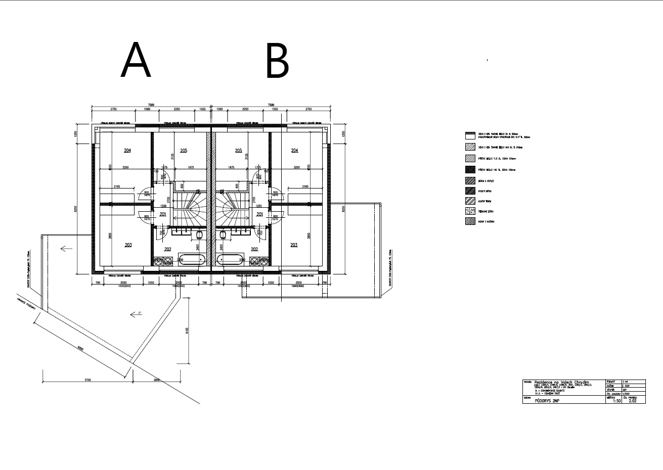
O projektu: Jedná se o pravou nebo levou polovinu moderního dvojdomu ve slepé ulici Na Valech. Pozemek je vyvýšený nad okolím, což zajišťuje soukromí. Protože dům zatím nestojí, máte jedinečnou možnost ovlivnit design interiéru.
Dispozice a pozemek : Navrženo jako efektivní 4+kk.
Celková výměra:
Dům A: k domu budou náležet pozemky o celkové rozloze 680 m² (zahrada 558 m² + podíl na příjezdové cestě 122 m²).
Dům B: k domu náleží pozemky o celkové rozloze 500 m² (zahrada 378 m² + podíl na příjezdové cestě 122 m²).
Orientace: Dle výběru domu
Variabilita: Projekt umožňuje vybudování většího carportu (dvojgarážové stání) nebo domácí dílny.
Vysoký standard novostavby: Projekt je koncipován nízkoenergeticky a designově:
Vzhled: Elegantní plechová střecha v odstínu antracit.
Konstrukce: Poctivá cihla HELUZ 30 + 20 cm zateplení.
Komfort: Tepelné čerpadlo, teplovodní podlahové vytápění, příprava na FVE a rekuperaci.
Parkování: V ceně je realizace vlastního carportu a podíl na 3 sdílených stáních pro návštěvy na nové příjezdové cestě.
Bezpečné financování: Kupujete pozemek a smlouvu o dílo na výstavbu domu.
- Krok: První investice je koupě pozemku. Lze financovat hotově i hypotékou.
- Krok: Samotnou stavbu platíte postupně. Peníze stavební firmě posíláte, až když vidíte hotovou práci (etapové financování).
Celková cena projektu: na dotaz
Zaujala vás tato nabídka? Přijďte se podívat na místo, kde bude váš nový dům stát. Všechna povolení jsou vyřízena.






